Войти
Полотенцесушители
Аксессуары
Держатели для освежителя воздуха
Держатели для полотенец
Держатели для туалетной бумаги
Держатели для фена
Диспенсеры для ватных дисков
Дозаторы для мыла
Ершики для унитаза
Коврики для ванной комнаты
Корзины для белья
Косметические зеркала
Крючки для ванной комнаты
Мусорные ведра
Мыльницы
Полки в ванную комнату
Поручни для ванной
Скребки
Стаканы и подстаканники для ванной комнаты
Сушилки для белья
Тканевые шторки на ванну
Комплектующие
Каркасы и монтажные комплекты
Комплектующие для душевых кабин
Комплектующие для душевых уголков и поддонов
Комплектующие для инсталляций
Шумоизоляция
Писсуары
Уценка

Система инсталляции для унитазов Grohe Rapid SL 38929000

Система инсталляции для унитазов Grohe Rapid SL 38929000
Код товара 21367
В наличии
Коллекция
Артикул
38929000
Страна
Германия
Гарантия
5 лет
Монтаж
В стену
Материал
Металл
Комплект поставки: Система инсталляций, бачок скрытого монтажа,крепления, кнопка смыва, звукоизолирующая прокладка, инструкция
Собрать комплект
38 100 руб.

Срок доставки: 1-3 дня
Доставка в пределах 20 км от МКАД - 1000р
Подробнее о доставке
Составить комплект
38 100 руб.
Система инсталляции
38 100 руб.
Система инсталляции
Шумоизоляция
950 руб.
Шумоизоляция

Характеристики

Описание

Похожие товары

Основные параметры
Бренд Grohe
Коллекция Rapid SL
Артикул 38929000
Страна Германия
Гарантия 5 лет
Материал Металл
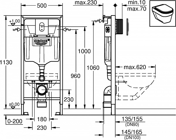
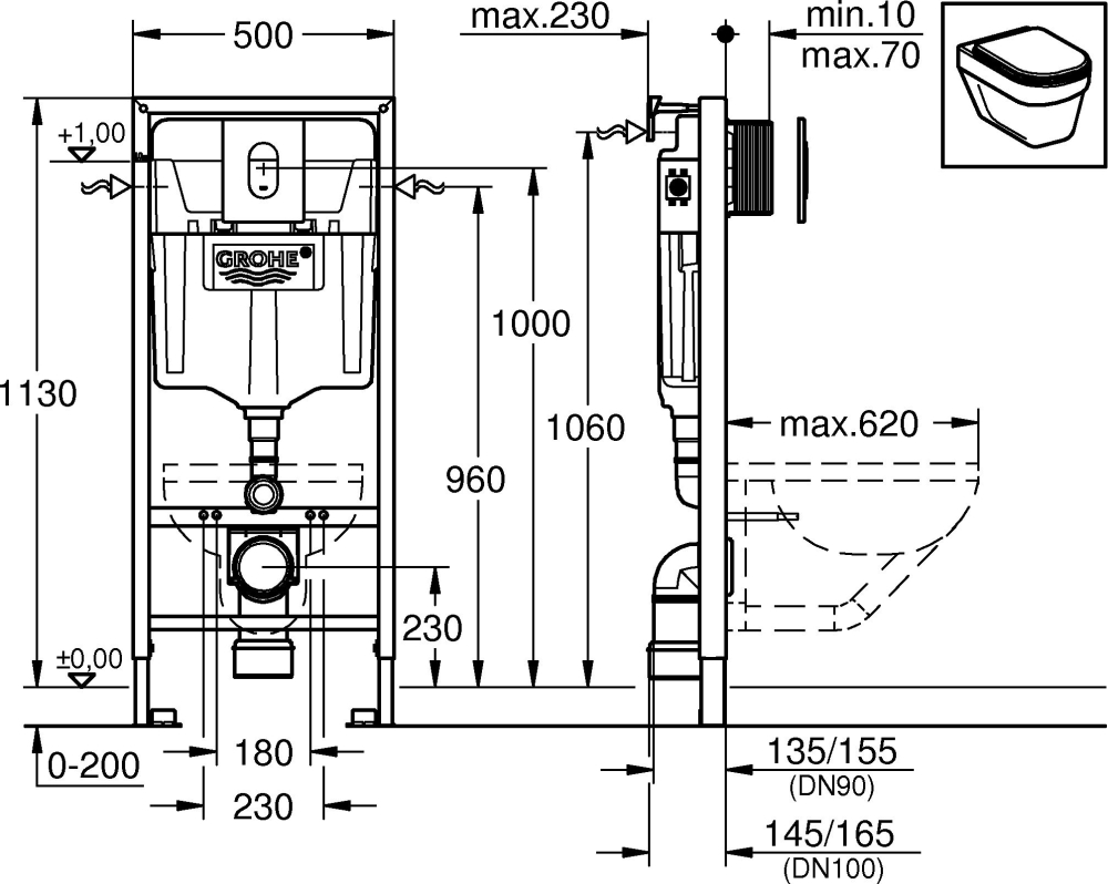
Габариты
Ширина 50 см
Высота 113 см
Глубина 16 см
Диаметр слива, см 9
Монтажная высота, см 113
Монтажная глубина, см 23
Диаметр переходника для слива, см 11
Характеристики
Монтаж В стену
Объем бачка, л 6 и 9
Режимы смыва Две кнопки (режим эконом), Одна кнопка (старт-стоп)
Подвод воды Сзади бачка, Сбоку бачка
Расстояние между шпильками, см 18; 23
Материал клавиши смыва Пластик
Установка бачка В стену (скрытый)
Назначение Для подвесных унитазов
Управление Пневматическая кнопка
Механизм смыва Пневматический
Тип инсталляции 4 в 1
Дополнительная информация Кнопка Arena Cosmopolitan
Внешний вид
Цвет Белый
Цвет клавиши Хром глянец
Оснащение
Клавиша смыва в комплекте Да, пневматическая
Упаковка
Вес брутто 13.5
Длина упаковки, мм 165
Ширина упаковки,мм 500
Высота упаковки, мм 1130
  • Немецкий производитель.
  • Гарантия: 5 лет
  • Монтажная рама крепится в капитальную стену.
  • Металлическая рама.
  • Цвет: Белый
  • Режимы смыва: Экономный слив предполагает две кнопки смыва – для полного и частичного слива бачка., Одна кнопка для режима слива «старт-стоп».
  • Подвод воды: Сзади бачка, Сбоку бачка
  • Управление: Пневматическая кнопка
  • Готовое решение 4 в 1.
  • С глянцевой клавишей цвета хром.

С этим товаром покупают

Ершики для унитаза
Коврики для ванной комнаты
Держатели для туалетной бумаги
Мусорные ведра